Rodinný dům pro mladou rodinu

project image
Prodej rodinného domu v malebné obci Oleško představuje ideální příležitost pro ty, kteří touží po kombinaci klidného venkovského života a blízkosti pulzujícího centra Prahy. Tento útulný dům se nachází pouhých pár kilometrů od hlavního města, což umožňuje snadný přístup ke všem městským pohodlím, zároveň však nabízí atmosféru klidného venkovského prostředí.

Dům disponuje prostorným pozemkem, ideálním pro rodiny s dětmi nebo ty, kteří si chtějí užívat venkovský životní styl. Zahrada poskytuje prostor pro relaxaci a odpočinek, zatímco v blízkosti se nacházejí přírodní rezervace a cyklostezky, ideální pro milovníky outdoorových aktivit.

Samotný dům je vkusně zařízený a nabízí veškerý komfort moderního bydlení. S rozsáhlými interiéry a kvalitním vybavením vytváří příjemné prostředí pro celou rodinu. S obchody, školami a veřejnou dopravou v dosahu se stává toto místo skvělou volbou pro ty, kteří chtějí spojit pohodlí městského života s klidem venkova. Nechte se okouzlit půvabem Oleška a zažijte dokonalou symbiózu mezi městem a venkovem.
Image 0
Image 1
Image 2
Image 3
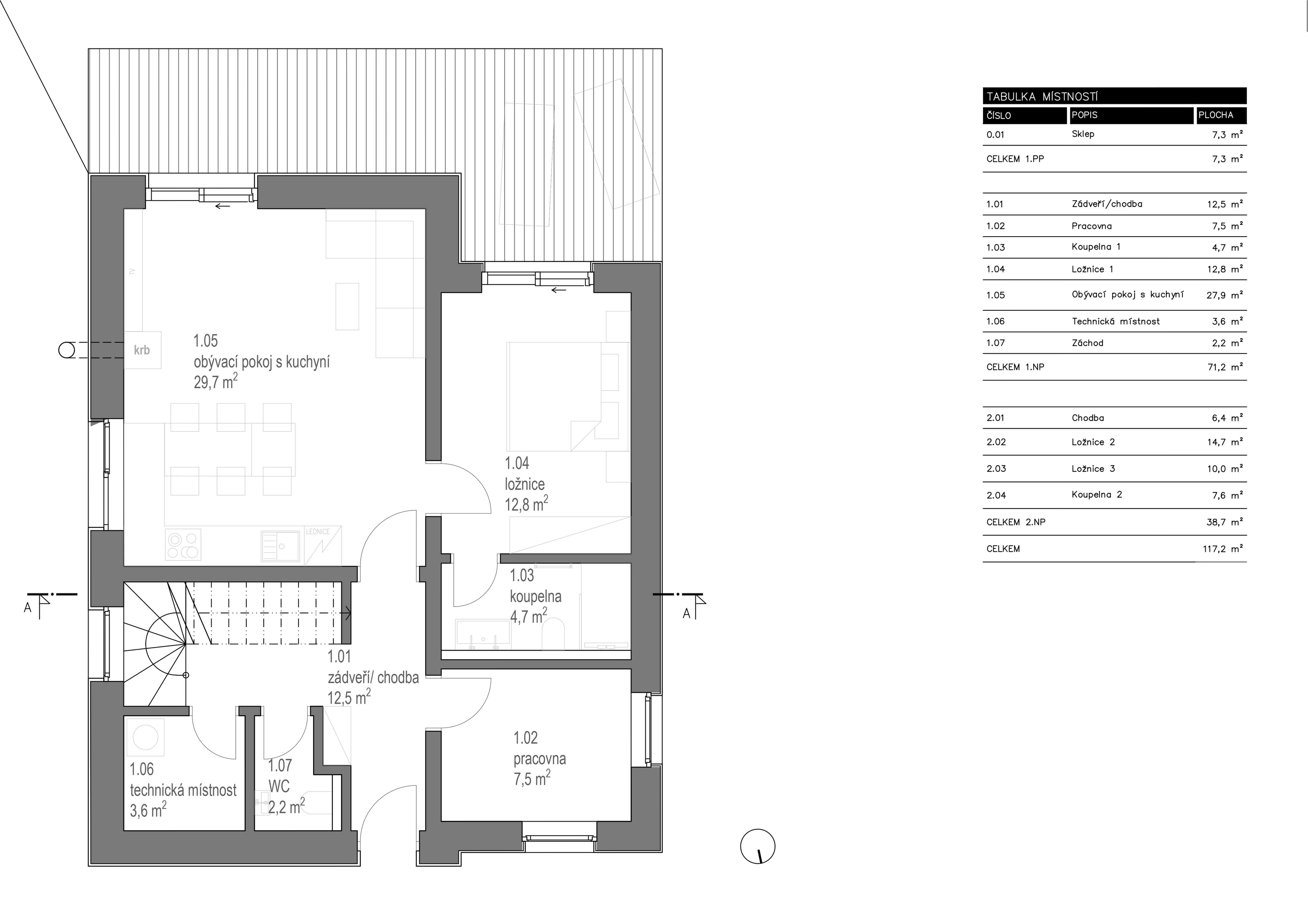
Přízemí

Přízemí

Vstupte do světa pohodlí a moderního bydlení, když vkročíte do přízemí tohoto krásného rodinného domu v obci Oleško. Obývací pokoj spojený s kuchyní tvoří srdce domu, nabízející prostorný a otevřený prostor pro rodinná setkání a večírky s přáteli. Ložnice poskytuje soukromý azyl pro klidný odpočinek, zatímco pracovna umožňuje efektivní práci bez nutnosti cestovat do města. Koupelna, technická místnost a WC dodávají praktický komfort každodenního života.

Energetická náročnost a vybavení

Energetická náročnost a vybavení

Tento rodinný dům je navržen s ohledem na energetickou úspornost, což znamená nižší náklady na provoz. Krb, rekuperace, podlahové vytápění a dřevo-hliníková okna přidávají do domu teplý a příjemný pocit. Podlahy z dřevěných lamel a keramická krytina v sociálním zázemí dodávají domu elegantní a moderní vzhled.

Exterier

Exterier

Dvoupatrový dům v obci Oleško zaujme svým venkovským šarmem, zvýrazněným dřevěným obložením fasády. Celý dům je obklopen pozemkem o velikosti 501m2, na kterém si můžete užívat soukromí a klid. Kromě toho budete mít k dispozici 2 parkovací stání, což je velkým bonusem. Částečně podsklepený objekt o objemu 7,3m3 poskytuje dostatek úložného prostoru. Součástí prodeje je i finální podoba zahrady, která bude lákavým místem pro odpočinek a rodinné aktivity.

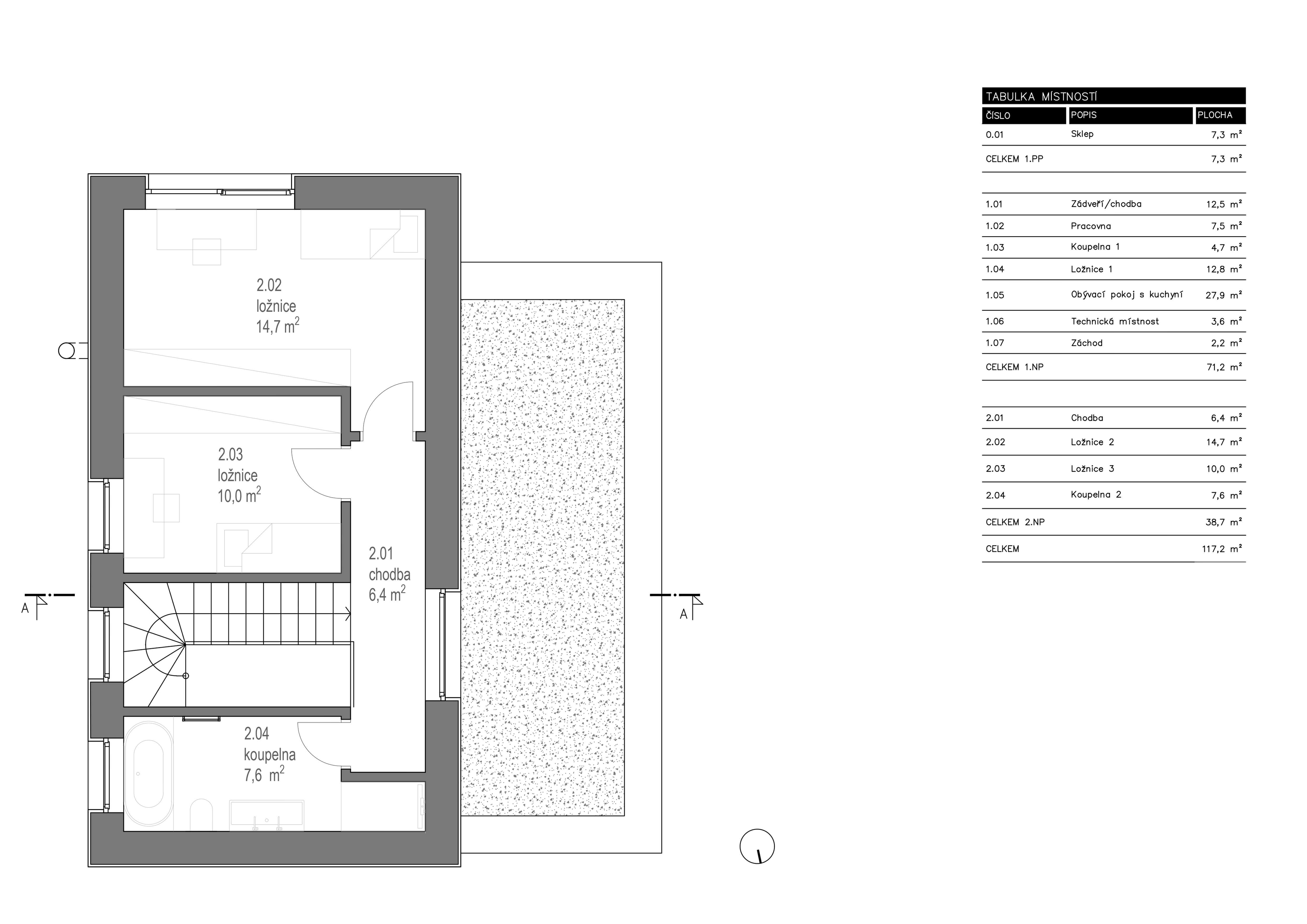
Patro

Patro

Na prvním patře domu najdete dvě prostorné pokoje, které nabízejí dostatek prostoru pro pohodlný život. Koupelna s WC zajišťuje pohodlí a soukromí pro obyvatele tohoto patra. Díky inteligentnímu uspořádání poskytuje první patro ideální prostředí pro klidné spaní a relaxaci.

Připraveno k nastěhování

Při převzetí tohoto rodinného domu v obci Oleško se nový majitel může těšit na bezstarostné a pohodlné nastěhování do svého nového domova. Každý detail byl pečlivě promyšlen a řešen tak, aby novým obyvatelům poskytoval maximální pohodlí a luxus. Všechny interiéry i exteriéry procházejí důkladnou kontrolou kvality, aby byla zajištěna dlouhodobá spokojenost a bezproblémové bydlení.